
设计理念:这是一套现代简约风格的装修案例。本案一家三口居住,屋主本身从事行业与房产相关,在装修风格上有着自己的偏好,喜欢大气简洁的质感新家。设计师通过与屋主沟通中,对主卫墙体进行改造,释放更多主卧空间。从空间布局、色彩材料和空间氛围等多方面出发,营造出舒适惬意的现代美宅。希望能给你们带来灵感。
案例简介
风格:现代简约
面积:110.5㎡
往下 看完整案例
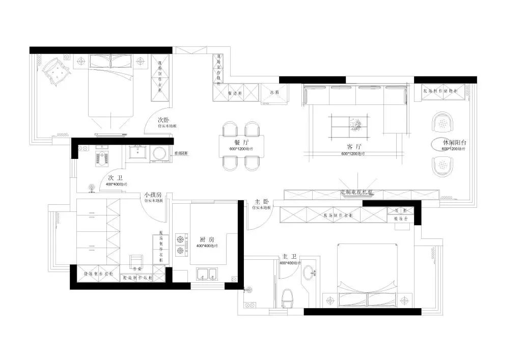
平面布置图

▲ 本案面积110.5㎡,三居室,且分开而设,保证居住者都拥有独立的空间。坚持客餐厅一体化布局,纳入休闲阳台,延伸空间纵深感。对主卫空间的墙体进行改动,充分扩大主卧空间。
客厅空间设计

▲ 客厅纳入阳台扩大使用面积与采光,拱形门设计柔和空间棱角。灰色哑光砖一路通铺,结合简洁大气的无主灯布局,极具高级感。

▲ 挑选大气优雅的高级灰沙发,与黑色板材构成的背景墙相辅相成,带来丰富的层次效果。辅以橙色抱枕、粉色玩偶点缀,调和清冷感。

▲ 沙发右侧从墙体延伸出悬浮长桌,连接阳台与客厅两个空间,可作边几置物,也可作为茶桌,根据需求灵活调整,赋予空间更多可能。

▲ 定制黑玻展示柜与电视墙结合,一柜到顶设计,保证空间连贯与统一。封闭柜门+开放格的组合,将插座与电线完美隐藏,视觉更完整。


▲ 梦幻轻盈的白色窗帘,将光与影反反复复雕塑,落至空间的每一个角落。超长悬浮木质桌,摆上小巧精致的装饰品,雅致而惬意。

▲ 从阳台看向公区视角
餐厅空间设计

▲ 餐厅,以实用与舒适为重点出发,功能完整齐全,简洁且大方。挑选现代风餐桌椅,搭配造型感艺术吊灯,兼具实用性和美观性。

▲ 沿墙打造整排餐边柜,柜体颜色材质与电视墙呼应,于左侧预留部分空间方便将冰箱内嵌,为厨房减压,多功能的设计满足更多需求。

▲ 从餐厅望向客厅视角
儿童房空间设计

▲ 儿童房延续整屋格调,简约舒适。沿窗定制榻榻米,与飘窗严丝合缝,为规划学习区预留足够空间。低饱和配色营造干净清爽的氛围。

▲ 书桌与衣柜一体化设计,色调与风格完美统一,最大化利用空间,提升收纳能力。经典简约用色,深浅呼应,将质感凸显地淋漓尽致。
次卧空间设计

▲ 次卧,拥有超大阳台+落地窗设计,窗外风景一览无余。背景墙以浅色乳胶漆填充,抽象艺术画上墙修饰,带来干净舒适的视觉感受。

▲ 灰色高背床头与床头柜保持统一色系于材质。挑选清冷中性调的床品、窗帘,辅以干净利落的线条修饰,构建舒适静谧的适眠空间。
主卧空间设计

▲ 主卧,整体实用浅色调,加以暖黄色点缀,营造舒适温馨的睡眠氛围。保留了飘窗一遇,加铺软糯的白色软垫,打造卧室休闲区。

▲ 浅咖色床头与背景墙融为一体,内嵌灯带设计+别致的艺术吊灯,丰富照明层次。不同于公区的冷色系,色彩温柔使得空间满是生机。


▲ 主卧细节+床头设计
卫生间空间设计


▲ 客卫,将干区外移,洗手台右侧叠放纳入洗衣机与烘干机,实现空间的多种功能。主卫墙体一体设计,功能齐全,简洁的陈设落落大方。











